79.51 m²
4 pièces
2 chambres
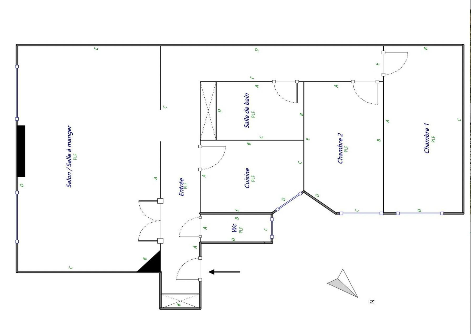
1Dans une petite rue calme à seulement 5 minutes à pied du métro Convention (ligne 12), laissez-vous séduire par ce superbe 4 pièces (80m²) de caractère niché au sein d'un immeuble 1930 au charme préservé.
Dès l'entrée, les volumes et la luminosité s'imposent. Le double séjour avec cheminée offre une atmosphère chaleureuse. La cuisine séparée aménagée complète harmonieusement l'espace de vie.
L'espace nuit se compose de deux belles chambres, d'un dégagement avec rangement, d'une salle de bain et de wc indépendant.
Un bien rare sur le secteur, alliant calme, cachet de l'ancien et emplacement recherché.
L'appartement est en bon état général. Il bénéficie d'une eau chaude individuelle électrique et d'un chauffage collectif CPCU. La copropriété, bien entretenue, dispose d'une gardienne et ne fait l'objet d'aucune procédure en cours.
Charges : 359 € / mois
Taxe foncière : 1 510 €
Honoraires d'agence à la charge de l'acquéreur : 4,48 %
Pour plus d'informations ou pour organiser une visite, contactez-nous dès maintenant au 09 83 79 77 06.